CASAL BRUNORI APPARTAMENTO BILOCALE CON CANTINA E POSTO AUTO
€ 180.000
Roma, zona Mostacciano
Dettagli
Contratto Vendita
Rif V274
Prezzo € 180.000
Provincia Roma
Comune Roma
Zona Mostacciano
Indirizzo Via Carmelo Maestrini">
Vani 2
Camere 1
Bagni 1
Classe energetica
G (DL 90/2013)
EPgl,nren 175 kwh/m2 anno
Piano 1 / 4
Riscaldamento autonomo
Spese condominiali € 100
Anno di costruzione 1990
Ascensore si
Cucina a vista
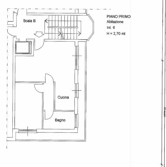
Consistenze
| Descrizione | Superficie | Sup. comm. |
|---|---|---|
| Principali | ||
| Immobile - 1° piano | 57 Mq | 57 Mqc |
| Posto auto | 13 Mq | 4 Mqc |
| Totale | 61 Mqc | |
Casal Brunori, proponiamo in vendita un ampio bilocale posto al primo piano di una palazzina in via Carmelo Maestrini. L'appartamento ha doppia esposizione angolare sud est/sud ovest ed è composto da un ampio soggiorno con cucina a vista, camera matrimoniale e bagno, tutti gli ambienti si affacciano su un lungo balcone che abbraccia la casa. Completano la proprietà una cantina ed un posto auto coperto. Lo stabile, si trova in una posizione ottimale, per la sua vicinanza al GRA, ed alle vie Pontina e Cristoforo Colombo, a pochi minuti dall'EUR. A pochi passi si trovano servizi ed attività commercialii di quartiere.
Immobile in diritto di superficie, pratica di affrancazione avviata.
Immobile in diritto di superficie, pratica di affrancazione avviata.
Richiedi maggiori informazioni
Mappa
Zoom della mappa
Apri con:
Apple Maps
Google Maps
Waze
Contattaci
Eur Centro Immobiliare srls
Viale Beethoven, 26 00144 ROMA (RM)
Viale Beethoven, 26 00144 ROMA (RM)
P.IVA: 14391931004
3355755988
3355755988
immobiliare-eur@eurocenterweb.it






